Porte Reversibili per Rivendita Da Magazzino REI Multiuso
Le porte reversibili ad una anta sono fabbricate per i commercianti che desiderano tenerle a magazzino per la vendita immediata in quanto la possibilità di applicarle di mano sinistra o destra ne fa scendere la quantità da tenere a magazzino alla metà.
La serratura, le cerniere, il telaio e la soglia sono così costruiti affinché le porte possano essere installate di mano sinistra o destra.
Le porte standard reversibili sono più basse di prezzo rispetto a quelle di mano e/o su misura perché per la produzione delle dimensioni standard non c’è spreco di materie prime e più porte della stessa dimensione possono essere prodotte più velocemente e con minore mano d’opera, con conseguente risparmio di costi.
Imprese di costruzioni e clienti attenti per quanto possibile preparano i fori muro delle dimensioni delle porte standard per trarre vantaggio del loro prezzo più competitivo rispetto a quelle su misura.
Solo porte di altezza standard possono essere costruite reversibili perché la maniglia è a metà altezza, ponendo a metà la maniglia su altezze non standard la maniglia risulterebbe o troppo alta o troppo bassa.
Porte reversibili non possono essere fornite con pannelli vetrati, griglie o serrature elettriche, perché tali esecuzioni presuppongono l’informazione di quale è la parte alta della porta, in questi casi devono essere ordinate porte di mano sinistra o destra.
Porte a due ante non possono essere fornite reversibili, devono essere ordinate di mano sinistra o destra riferito all’ anta principale.
PORTA REI 60 Porta antincendio metallica modello REVERSIBILE certificata di resistenza al fuoco 60 minuti ad una anta, fornita montata con telaio angolare su 4 lati in acciaio alta resistenza verniciato a polveri epossipoliestere RAL 7035 finitura liscia e dotato di zanche ripiegabili e fori per tasselli, una cerniera a molla ed una portante, anta spessore totale 53 mm in doppia lamiera di acciaio zincato finitura in preverniciato RAL 7035 con pelabile, pacco di isolamento interno antincendio, guarnizione autoespandente perimetrale tra ante e telaio, 1 rostro di tenuta, serratura certificata CE con scrocco e mandate , maniglia antinfortunistica nera in poliammide ignifugo con anima in acciaio, placche e chiave tipo patent, lato inferiore del telaio amovibile dopo posa, targhetta con marchio conformità, adesivo con dati, libretto con istruzioni di posa uso e manutenzione, copia omologazione e dichiarazione di conformità.
PORTA REI 120 Porta antincendio metallica modello REVERSIBILE, certificata di resistenza al fuoco 120 minuti ad una anta, fornita montata con telaio angolare su 4 lati in acciaio alta resistenza verniciato a polveri epossipoliestere RAL 7035 finitura liscia e dotato di zanche ripiegabili e fori per tasselli, una cerniera a molla ed una portante, anta spessore totale 63 mm in doppia lamiera di acciaio zincato finitura in preverniciato RAL 7035 con pelabile, pacco di isolamento interno antincendio, guarnizione autoespandente perimetrale tra ante e telaio, 2 rostri di tenuta, serratura certificata CE con scrocco e mandate , maniglia antinfortunistica nera in poliammide ignifugo con anima in acciaio, placche e chiave tipo patent, lato inferiore del telaio rimovibile dopo posa, targhetta con marchio conformità, adesivo con dati, libretto con istruzioni di posa uso e manutenzione, copia omologazione e dichiarazione di conformità.
PORTA MULTIUSO (NON REI) Porta multiuso metallica modello REVERSIBILE, ad una anta, fornita montata con telaio angolare su 4 lati in acciaio alta resistenza verniciato a polveri epossipoliestere RAL 7035 finitura liscia e dotato di zanche ripiegabili e fori per tasselli, due cerniere portanti di formato ridotto mm 98 x 16,5 Ø, anta spessore totale 53 mm in doppia lamiera di acciaio zincato finitura in preverniciato RAL 7035 con pelabile (disponibile anche solo zincata per ordini di almeno 1 paletta) con isolamento interno in polistirene espanso oppure cartone alveolare, serratura certificata CE con scrocco e mandate , maniglia antinfortunistica in plastica nera con placche e chiave tipo patent, lato inferiore del telaio amovibile dopo posa, adesivo con dati, libretto con istruzioni di posa uso e manutenzione.
PORTA MULTIUSO CON FORI DI AERAZIONE (NON REI)
Porta dalle caratteristiche come la precedente ma con fori di aerazione di forma triangolare simmetrici ai quattro angoli dell’anta.
NOTE INTEGRATIVE ALLE PORTE REVERSIBILI
- Le misure negli ordini, nelle conferme d’ordine e nei documenti di trasporto e nelle fatture fanno sempre riferimento a misure “Foro muro” Lfm (larghezza) x Hfm (altezza).
- Per favorire la sicurezza ed ottimizzare I costi di trasporto ordinare preferibilmente palette complete o multipli di esse. La quantità di porte per pallet è segnata nel listino vicino al prezzo.
- Tutti gli accessori per le porte reversibili sono venduti solo separatamente e possono essere: maniglioni antipanico e relative serrature, cilindri, chiudiporta, guarnizioni di battuta, maniglie diverse, elettromagneti, fascioni e zoccoli inox, imbotti, profilo superiore lato cerniera, profilo coprifuga lato opposto a cerniere. Vedere “accessori opzionali” in questa sezione. Accessori non menzionati non possono essere installati su porte reversibili in tal caso è necessario ordinare porte di mano.
- Porte reversibili possono essere fornite solo nella tinta standard RAL 7035 salvo per quantitativi rilevanti (100 porte o oltre) e previ accordi speciali. Porte in colorazioni diverse dallo standard RAL 7035 devono essere ordinate di mano.
- E’ possibile ordinare porte reversibili con inserita serratura antipanico anziché serratura standard per la successive applicazione dei maniglioni antipanico, ma la foratura dell’anta per il loro fissaggio rimane a onere e cura del cliente.
- Per la posa con tasselli o falsi telai questi sono esclusi dai prezzi.
- Porte di larghezza Lfm 1330 aperte a 90° ed equipaggiate con maniglioni antipanico modello Slash o Touch-bar mantengono i 1200 mm. di passaggio libero considerando il 5% di tolleranza ammessa dalla legge (= 1140 mm).
- Il RAL 7035 standard di telaio e anta potrebbero differire nella reale tonalità finale per la diversa procedura di finitura, preverniciata l’anta e a polveri epossipoliestere liscio il telaio. In caso di dubbi fotografie o campioni possono essere sottoposti prima dell’ordine.
- La colorazione standard RAL 7035 è adatta a vani tecnici senza particolari esigenze estetiche, garages ecc. In caso di applicazioni in vani o luoghi più curati come per esempio corridoi di ospedali, case per anziani, hotels, centri commerciali è consigliabile l’uso di porte verniciate a polveri epossipoliestere almeno in una delle tonalità semistandard disponibili a listino con un lieve sovrapprezzo o in qualsiasi tonalità speciale ad un prezzo superiore.
- Con uso intensivo o ante con Lfm ≥ 1000 installare chiudiporta aerei.

Porte reversibili sono disponibili nelle dimensioni standard della tabella sottostante.
Le misure negli ordini, nelle conferme d’ordine e nei documenti di trasporto e nelle fatture fanno sempre riferimento a misure “Foro muro” Lfm (larghezza) x Hfm (altezza).
Calcolo delle dimensioni “passaggio netto” ed “esterno telaio” partendo dalla dimensione foro muro Lfm x Hfm.
Passaggio netto:
dedurre mm 85 dalla larghezza e 43 dall’altezza.
Esterno telaio:
Aggiungere mm 50 alla larghezza e dedurre 10 dall’altezza.

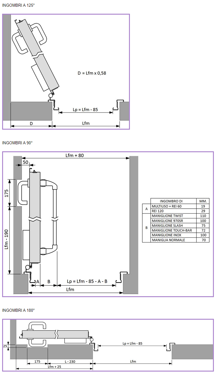
PASSAGGIO NETTO RIMANENTE CON APERTURA ANTA LIMITATA A 90°
Si ricorda che la legge consente un 5% di tolleranza sul passaggio netto rimanente che perciò per esempio se fosse prescritto 1200 diventa 1140

*** VIE D’ESODO: si ricorda chein caso di applicazione del Nuovo Codice di Prevenzione Incendi di cui al Decreto 14 Luglio 2015 non è più necessario dedurre l’ingombro di dispositivi di apertura delle porte con sporgenza non superirore ad 80 mm pertanto nei casi contrassegnati non dedurre la quota “D”
I seguenti articoli sono compresi nei prezzi delle porte:
Porte REI:
PORTE MULTIUSO
Finitura del telaio a polveri epossipoliestere RAL 7035 liscia e anta in preverniciato RAL 7035 con pelabile. Le porte multiuso sono disponibili anche solo zincate.
Se ordinate con i fori di aerazione, forature ai 4 angoli dell’anta.
I seguenti articoli sono opzionali, forniti con supplemento di prezzo.
MANIGLIONI ANTIPANICO certificate e marchiati CE secondo la vigente normativa Europea UNI EN 1125 e forniti con istruzioni d’uso e manutenzione.
Sono disponibili 5 modelli per le diverse esigenze:
Modello TWIST-TECNO, a leva, base nera, barra color alluminio naturale, maniglione venduto e usato da anni per il prezzo conveniente, il facile montaggio, il funzionamento perfetto. Marcato CE 376B1422AA. Sporgenza 110 mm.
Modello 970 SR, a leva, base nera, barra color rosso, maniglione relativamente nuovo molto affidabile e pratico come alternativa al modello Twist-Tecno per il colore della barra. Marcato CE 376B1322AA. Sporgenza 100 mm.
Modello SLASH-TECNO PLUS, tipo push, base nera, barra color alluminio naturale, maniglione usato quando serve un basso ingombro su porte che si aprono solo a 90°. Marcato CE 376B1322BA. Sporgenza 75 mm.
Modello TOUCH BAR, tipo push, base nera, barra color rosso, maniglione usato quando serve un basso ingombro su porte che si aprono a 90°, alternativa al modello Slash per il colore della barra. Marcato CE 0425 prod. CISA. Sporgenza 72 mm.
Modello INOX, a leva, base inox, barra inox, maniglione interamente in acciaio inossidabile, elegante, di alta affidabilità, facile montaggio e dal funzionamento perfetto. Marcato CE37611322AA. Sporgenza 100 mm
SERRATURE ANTIPANICO certificate e marcate CE secondo la vigente normativa Europea UNI EN 12209
CILINDRI
CILINDRI da usarsi al posto dell’inserto in plastica con chiave patent fornito di serie.
Seguenti tipi disponibili:
Cilindro complete “40+40” per i due lati porta.
Mezzo cilindro “40+10” per un solo lato porta, per esempio per il lato a tirare di porte equipaggiate di con maniglioni antipanico.
Cilindri come I precedenti ma di cifratura unificata = tutti uguali e con la stessa chiave.
Cilindri masterizzati = tutti diversi e con chiavi diverse ma una chiave maestra li apre tutti, fornibile anche in diversi gruppi per diverse parti di un fabbricato.
Cilindri con pomolo e chiave sul lato opposto per camere d’albergo.
Cilindri con pomolo e incisione sul lato opposto per aperture con una moneta per WC.
CHIUDIPORTA
CHIUDIPORTA aerei forniti con istruzioni di installazione e manutenzione, certificati e marchiati CE secondo la vigente normativa Europea EN 1154.
Sono disponibili più modelli per le diverse esigenze fra cui i più usati di seguito in foto:
GUARNIZIONE DI BATTUTA
GUARNIZIONE DI BATTUTA elastica per anta e telaio
MANIGLIE DIVERSE DALLO STANDARD
MANIGLIE DIVERSE DALLO STANDARD, a leva, pomoli e placche di diversi tipi ed in diverse combinazioni con istruzioni d’uso e manutenzione.
ELETTROMAGNETI
ELETTROMAGNETI con pulsante di sblocco ed ancora in acciaio da fissare all’anta, funzionamento elettrico a 24V / 60 kg. di tenuta, conformi alla normativa UNI EN 1155. Da collegare a centraline di gestione
FASCIONI E ZOCCOLI
FASCIONI E ZOCCOLI per il lato a spingere e tirare delle porte.
Tipi:
Fascioni in inox o alluminio con o senza fori per maniglie o maniglioni antipanico, a tutta larghezza anta, altezza mm 175.
Zoccoli in inox o alluminio a tutta larghezza anta, altezza mm 220.
IMBOTTI TELESCOPICHE
Imbotti telescopiche in acciaio zincato presspoiegato con finitura identica alle porte a cui vanno applicate e fornite disasssemblate da fissare al telaio porta con viti nascoste in battuta. Giunzioni superiori a 90°. Disponibili per spessori parete finita da 85 a 385 mm.
PROFILO SUPERIORE
In profilato di acciaio zincato e verniciato RAL 7035 liscio applicabile con rivetti al traverso superiore delle porte reversibili REI 60, REI 120 e multiuso a scopo di uniformità estetica coi montanti del telaio, applicabile anche dopo la posa in opera della porta.
COPRIFILO
Ad “L” sezione mm 20 x 30 in profilato di acciaio zincato e verniciato del colore delle porte a cui va abbinato per copertura della fuga fra telaio e parete da fissare con punti di silicone, soluzione estetica migliorativa adatta in particolare a porte posate a tasselli se cemento armato.
Per le porte reversibili sono disponibili 2 tipi omologati di fissaggi alla parete: a zanche con malta cementizia e a tasselli. Le porte sono tutte fabbricate identiche, anche quelle multiuso, i tasselli sono esclusi dalla fornitura. Per il fissaggio con malta le zanche devono essere piegate aperte ed immurate. Per il fissaggio a tasselli le zanche tenute chiuse fungono anche da distanziale in quanto nella loro piega più sporgente sono predisposte con un apposito foro dal quale far passare il tassello proposto di lunghezza 12 cm e diametro 10 mm variabile comunque in base al tipo di parete. Consultare per le porte REI nella sezione “omologazioni” i fissaggi omologati.

Conoscendo la posizione delle zanche le pareti possono essere preparate per l’installazione delle porte. Di seguito i disegni per i vari tipi di porte.

Di seguito i disegni degli ingombri delle porte reversibili a diversi angoli di apertura.
